Статья из Технической энциклопедии 1927-34 г.г.
Судовые котлы паровые

Самиздат: [Регистрация] [Найти] [Рейтинги] [Обсуждения] [Новинки] [Обзоры] [Помощь|Техвопросы]
Ссылки:
Школа кожевенного мастерства: сумки, ремни своими руками Типография Новый формат: Издать свою книгу
Оценка: 5.12*25  Ваша оценка:


   Судовые К. п.
   К. п. судовые служат для питания паром главных и вспомогательных механизмов паровых судов. Они разделяются на два основных типа: 1) цилиндрические, или огнетрубные, и 2) водотрубные, которые в свою очередь бывают с толстыми и тонкими водогрейными трубками. Ц и л и н д р и ч е с к и е судовые К. п. теперь применяются исключительно на коммерческ. судах, т. к. они очень тяжелы, требуют большого времени на разводку паров (от 4 до 24 ч. в зависимости от величины), не поддаются большой форсировке (максимальное напряжение поверхности нагрева не превышает 20--25 кг/м2) и не очень гибки в перемене режима, как это требуется для военных кораблей. Большая экономичность, простота обслуживания, малая чувствительность к качеству воды, большие промежутки между чистками, большой объем воды, обеспечивающий равномерное парообразование даже при периодич. сравнительно редком питании топок, делают их весьма удобными для коммерч. судов. Устанавливаются они на всех типах коммерч. судов, начиная от небольших катеров и кончая трансокеанскими пароходами, хотя в настоящее время на быстроходных пассажирских судах предпочитают ставить водотрубные котлы. Цилиндрич. котлы обычно строятся с обратным ходом дыма (фиг. 91), но для речных пароходов, где место по высоте сильно ограничено, приходится применять и прямой ход, развивая размер по длине. Цилиндрич. К. п. с обратным ходом дыма состоит из цилиндрич. барабана, внутри к-рого помещаются 2, 3 или 4 жаровых трубы, оканчивающиеся в огневых ящиках. Дымогарные трубки ввальцовываются одним концом в переднюю стенку огневого ящика, другим--в переднюю стенку К. п. На речных судах встречается овальное сечение котла (большая ось вертикальна) вместо круглого, что вызывается ограниченной шириной. Цилиндрич. Котлы изготовляются одно- и двухсторонние. Двухсторонние котлы (фиг. 92) несколько легче, но имеют больший объем воды и требуют более внимательного обслуживания в смысле равномерности питания топок. Нагревательная поверхность доходит до 300 м2 у односторонних и до 600 м2 у двухсторонних. Нагревательной поверхностью считается: 1) поверхность топок полностью в случае нефтяного или пылевидного топлива и верхняя половина топки от колосниковой решетки в случае твердого топлива (6--8% общей поверхности нагрева); 2) поверхность огневого ящика выше борова за вычетом отверстий для трубок (9--12%); 3) поверхность дымогарных трубок по наружному диаметру (79--89%); 4) часть передней стенки, омываемая газами (1,3--2,0%). Диам. цилиндрическ. котлов доходит до 5 200 мм, при длине одностороннего до 3 600 мм и двухстороннего до 6 400 мм. Число топок зависит от диаметра барабана К. п.; употребительное число топок дано в табл. 5.
    []
    []  []
   Диаметр жаровых труб от 700 до 1 200 мм; длина их в угольных котлах определяется возможностью обслуживания решетки. Жаровые трубы обыкновенно делают сварными, волнистыми. Отношение поверхности нагрева к площади колосниковой решетки H/R при естественной тяге равно 25 -- 35, при дутье Хоудена 38 -- 43. Часовое количество сжигаемого топлива при естественной тяге доходит до 100 кг, а при дутье Хоудена до 130--140 кг на 1 м2 колосниковой решетки. Дымогарные трубки ставят простые и связные. Обычно применяют сварные, реже цельнокатаные трубки. Внутренний диам. трубок зависит от величины котла и изменяется в пределах 50--83 мм, длина до 2--2,5 м. Простые трубки развальцовываются в трубных досках, связные -- ставятся на резьбе. Толщина связных трубок 5--10 мм, простых 2,5--4мм. Трубки располагаются или в шахматном или в цепном порядке. Последнее удобнее для чистки, но затрудняет парообразование. Огневой ящик обыкновенно делают отдельным для каждой топки, но в редких случаях и общим. Плоские стенки ящиков подкрепляются короткими связями (анкерными болтами), скрепляющими их с днищем и барабаном котла, а небо--анкерными скобами. Корпус котла делают из листов, склепываемых продольными швами с накладками в барабаны, к-рые склепываются между собою швами внахлестку. Днища в зависимости от величины делаются из одного или нескольких листов; в последнем случае листы склепываются внахлестку. Края днища отбортовываются для соединения с барабаном. Днища скрепляются между собою продольными связями. Для очистки и осмотра в барабане котла вырезываются горловины размером 300x400 мм. Для повышения экономичности в нек-рых случаях устанавливаются пароперегреватели, состоящие из батареи тонких трубок, расположенных в дымовой коробке, а иногда и внутри дымогарных трубок особо крупного диаметра; в каждой трубке помещается одна или две петли перегревателя. Стремление увеличить поверхность нагрева при том же объеме привело к комбинации огнетрубного котла с элементами водогрейных трубок (фиг. 93, а--водогрейные трубки, б--перегреватель).
    []
   Водотрубные К. п. Появление их на судах вызвано требованиями военного флота. Они при том же занимаемом месте обладают большей паропроизводительностью и легче цилиндрических. Малое количество воды в них позволяет быструю разводку пара (нормально 11/2--2 ч., в экстренных случаях до 30 минут), быструю перемену режима, а конструкция допускает сильную форсировку. Эти котлы получили название невзрывающихся, так как все аварии происходят только с трубками и не вызывают тяжелых повреждений котла, а тем более корабля, тогда как взрывы цилиндрич. котлов неоднократно бывали причиной гибели судов. В настоящее время водотрубные котлы устанавливаются на всех военных судах и на многих быстроходных коммерч. пароходах. Недостатками водотрубных котлов являются: 1) необходимость питания их чистой, опресненной водой, так как даже небольшая соленость воды при больших степенях форсировки вызывает быстрое образование толстого слоя накипи на трубках, что ведет к перегреву металла и разрыву трубок; 2) угольное отопление котлов д. б. методическим, т. е. подача угля должна производиться равномерно через короткие промежутки времени небольшими порциями; питание водой должно производиться непрерывно, что сильно усложняет уход; 3) котлы требуют частой чистки (выщелачивания) для удаления накипи и масла. Среднее число часов работы между чистками не должно превышать 500 -- 600. Чистка же занимает очень много времени вследствие большого количества трубок. Из водотрубных судовых К. п. с толстыми водогрейными трубками наибольшее распространение получили котлы сист. Бельвилля и Бабкока и Вилькокса. Первые устанавливались до войны на относительно тихоходных военных судах (линейные корабли, крейсеры, канонерские лодки, заградители) во Франции, Англии, России и др. (см. См. Котел Бельвилля ). В настоящее время они устанавливаются преимущественно на франц. пароходах. Котлы Бельвилля отличаются слабой циркуляцией и большой влажностью пара. Отмеченные недостатки были в значительной степени устранены инж. Долголенко, изменившим конструкцию котла т. о., что путь воды в элементе укорачивается вдвое и получается более сухой пар. Фиг. 94 показывает элемент инж. Долголенко в выполнении з-да Бельвилля. Наружный диам. трубок элемента делают от 82 до 115 мм, при толщине их 3,5---4,5 мм. Коробки--из ковкого чугуна. Поверхность нагрева К. п. без экономайзера--порядка 150--200 м2, H/R- 30. Интенсивность сжигания при угольном отоплении доходит до 200 кг/м2 колосниковой решетки. Нормальн. рабочее давление пара--21 atm. Для лучшего перемешивания газов с воздухом в топку этих котлов выше слоя угля через особые насадки подводится воздух, подаваемый для этой цели специальными компрессорами.
    []
    []
   Котлы паровые Бабкока и Вилькокса (фиг. 95) устанавливались на больших кораблях американского и английского военных флотов. Сейчас они пользуются большой популярностью на коммерческих судах. Паровые котлы этой системы отличаются большой простотой, надежностью, экономичностью и дешевизной. Поверхность нагрева этих К. п. доходит до 500 м2. Интенсивность сжигания при угольном отоплении до 150 кг/м2 колосниковой решетки, а при нефтяном отоплении до 175 кг/м3 объема топки. Эти котлы состоят из ряда извилистых передних и задних камер (числом до 26), между которыми расположены под углом в 15R водогрейные трубки, закрепленные в стенках камер раскаткой. Передние камеры своей нижней частью соединяются с водяным коллектором прямоугольного сечения. На больших котлах ставят два водяных коллектора--один для правой, другой для левой половины котла; внутренние концы этих коллекторов имеют глухие донышки. Верхней своей частью передние камеры соединяются с паровым коллектором при помощи коротких патрубков на раскатку. Задние камеры элементов трубками диаметром до 100 мм соединяются с паровым пространством парового коллектора. Водогрейные трубки делаются диам. около 50 мм за исключением трубок двух нижних рядов, диаметр которых доходит до 100 мм. В стенках передних и задних камер устроены горловинки с крышками для развальцовки и чистки трубок. Отопление котла делают угольное, нефтяное или смешанное. В виду того что путь газов в междутрубном пространстве недостаточно длинен, в этих К. п. устанавливают особые перегородки для направления пламени. Водотрубные К. п. с т о н к и м и т р у б к а м и , иначе называемые котлами треугольного типа, являются в настоящее время основным типом для военных судов вследствие своей легкости, огромной производительности и гибкости маневрирования. Наиболее распространенными являются К. п. системы Ярроу, Уайт - Форстера, Торникрофта, Нормана.
    []
   Котел Ярроу (фиг. 96) отличается прямыми трубками; для удобства развальцовки водогрейных трубок водян. коллекторы делались некруглой формы. Это вызывало неправильные деформации, и при длительной форсированной работе часто появлялась течь в швах. Современный тип строится с круглыми водяными коллекторами. Малые катерные К. п. строились с водяными коллекторами, у которых нижняя крышка (штампованая) крепилась к трубной доске болтами. Видоизмененный К. п. Ярроу--К. п. английского адмиралтейства, имеет трубы обратной воды (по две штуки с передней стороны на каждом водяном коллекторе), служащие для облегчения циркуляции воды; кроме того два ближайших к топке ряда трубок делаются с небольшой погибью. К. п. Ярроу--Вулкан имеет круглые водяные коллекторы, трубки в нем делаются прямыми только в средней части, концы же изогнуты по дуге большого радиуса, с целью достижения ввода в водяной коллектор нормально к поверхности.
    []
   К. п. Уайт-Форстера (фиг. 97) отличаются изогнутыми трубками и трубами обратной воды большого диаметра. Все трубки изгибаются по дуге одного радиуса в одной плоскости, а при постановке их поворачивают для образования уширенного посредине пучка. Этот К. п. принят для эскадренных миноносцев англ. и американского флотов.
    []
   К. п. Торникрофта в современном выполнении (фиг. 98) мало отличается от герман. модификации К. п. Ярроу.
    []
   Раньше для угольного отопления К. п. этой системы строились с 1, 2 или 3 (фиг. 99) водяными коллекторами и сильным изгибом трубок, которые образовывали в двух местах по высоте сплошную стенку для направления газов.
    []
   Котел Нормана (фиг. 100) является основн. типом К. п. французского военного флота. Главной его особенностью является образование из трубок сплошных стенок для направления газов вдоль оси котла. На военных кораблях котлы треугольного типа применяются сейчас исключительно с нефтяным отоплением и делаются как одно-, так и двухсторонними. Величина поверхности нагрева доходит до 1 500 мг. Наиболее распространенное рабочее давление 18 atm, но имеется тенденция к повышению его, и напр, в итальянском флоте на новых судах давление доведено до 22 atm. Имеются установки с рабочим давлением даже до 40 atm. Паровые коллекторы изготовляются по большей части клепаными, а водяные--или клепаными или цельноковаными. Штампованые донышки приклепывают к коллекторам. Для плотности швов в месте крепления донышек часто применяется уплотнительная сварка продольных швов. Трубки применяются цельнотянутые (последняя протяжка--в холодном состоянии), из очень мягкой стали; иногда трубки оцинковываются. Наружный диаметр водогрейных трубок делают от 25 до 50 мм, толщину стенки -- от 2 до 4 мм. Закрепляются они в коллекторах развальцовкой с раздачей концов "на колокольчик". В котлах с нефтяным отоплением большинство з-дов два внутренних ряда трубок делают несколько большего диаметра с большой толщиной стенок, т. к. эти ряды, воспринимая лучистую теплоту, наиболее интенсивно работают. Опытами установлено, что первые ряды трубок испаряют до 50--60% всего пара. Наклон трубок к горизонту делают от 40 до 60R. Все водотрубные котлы заключают в кожух, состоящий из 2 или 3 слоев листового железа с асбестовой изоляцией и воздушной прослойкой. Кожух делают жестким, чтобы он мог сопротивляться вибрациям корабля и Г-ным напряжениям. Для очистки труб от сажи в кожухе делают дверцы и съемные щиты. Наружные поверхности коллекторов водотрубных котлов и корпусов огнетрубных покрывают изоляцией из асбестовых или асбесто-магнезиальных матрацов. Со стороны топки коллекторы и кожухи водотрубных котлов защищают от действия высокой tR кладкой из легкого огнеупорного кирпича. Пароперегреватели устанавливаются в настоящее время на большинстве турбинных судов. Они состоят из трубок того же или несколько меньшего диам., что и водогрейные, обычно согнутых U- или W-образно, и одного или двух коллекторов. В котлах треугольного типа перегреватели обыкновенно располагаются в одной половине котла, между раздвинутыми рядами одного или обоих пучков (фиг. 96). Перегрев обыкновенно невысокий: 50--70R. К. п. судов работают при естественной или искусственной тяге; первая применяется исключительно на коммерч. судах. При искусственной тяге воздух подается непосредственно в поддувало или в закрытую кочегарку. Первый метод практикуется главным образом на коммерческих судах совместно с подогревом воздуха (система Хоудена). Воздух подогревается до 50 -- 60R прогонкой его вентилятором через подогреватель, расположенный в дымоходах, и нагнетается через закрытые поддувала в топку. В закрытую кочегарку воздух нагнетается турбовентиляторами. Давление доходит до 250--280 мм водяного столба. Арматура судовых К. п. состоит из: 1) предохранительных клапанов, 2) главного стопорного клапана, 3) вспомогательного стопорного клапана, 4) питательных клапанов с автоматами питания,5) клапанов продувания, верхнего и нижнего, 6) водомерных стекол, 7) водомерных кранов. Предохранительные клапаны устанавливаются всегда пружинного типа, не менее двух на каждом котле. Диам. клапана в свету делают не больше 100 мм, и если для получения требуемой площади сечения клапана диаметр выходит из этого предела, то общую площадь распределяют на 3--4 клапана одинаковых размеров.
    []
    []
   Предохранительный клапан прямого действия показан на фиг. 101. Тарелка клапана прижимается к седлу пружиной, нажатие которой регулируется втулкой, ввертываемой в крышку корпуса клапана. Тарелка клапана имеет вид гриба для увеличения площади, на к-рую в момент подъема действует давление струи пара, вследствие чего увеличивается высота подъема и площадь свободного прохода клапана.
    []
   На фиг. 102 изображен предохранительный клапан сист. Кокбурна, у которого отсутствие сильных пружин дает возможность за счет большого подъема клапана уменьшить его диаметр, что обеспечивает лучшую пригонку клапана. Кроме того этот клапан обладает большой чувствительностью и поддается весьма точной регулировке. Действует он следующим образом: при повышении давления пара выше нормального открывается регуляторн. клапан а небольшого диаметра, нагруженный сравнительно слабой пружиной б, и пар по каналу в попадает в полость г; так как диаметр поршня д больше диам. клапана е, то поршень под действием давления пара продвинется влево и откроет клапан е для выпуска излишка пара в атмосферу. При понижении давления в котле регуляторный клапан под действием пружины б закроется, доступ свежего пара в полость г прекратится, давление в ней понизится вследствие конденсации пара, и клапан е закроется под действием слабой пружины ж и давления пара, прекратив тем самым выпуск пара из котла в атмосферу. Пружина ж служит также для регулировки величины открытия клапана. Предохранительные клапаны должны иметь привод для открытия их вручную (для пробы), выведенный на передний фронт котла, на нижнюю площадку кочегарки. Питание водотрубных К. п. обычно производится в паровой коллектор.
    []
   Большие форсировки требуют автоматич. питательного устройства; одним из наиболее распространенных является автомат Мумфорда (фиг. 103). Верхн. часть автомата, располагаемая на паровом коллекторе, представляет собой обыкновенный невозвратный клапан а с поршнем б, ходящим в цилиндре с небольшой слабиной. Просачивающаяся через слабину вода отводится по трубе в,в' через клапан ж во всасывающий трубопровод питательных насосов. Питательная вода от насоса подводится по трубе д и через клапан а подается в котел. Регулирование подачи воды производится поплавком е, действующим на игольчатый клапан ж, заключенный в коробке з. Корпус коробки и трубами к,к' сообщается с паровым и водяным пространствами котла. Коробка и прикрепляется к котлу так. обр., чтобы при нормальном уровне воды ось поплавка была горизонтальна. При понижении уровня воды в котле поплавок опускается и закрывает клапан ж, останавливая тем самым вытекание просочившейся через поршень б воды, вследствие чего давление воды на поршень б с обеих сторон уравновесится и клапан а под напором питательной воды откроется и даст возможность производить питание парового котла. При поднятии уровня воды в К. п. поплавок, поднимаясь, откроет клапан ж и даст возможность воде,собравшейся под поршнем б, уйти, вследствие чего давление на поршень б возрастет и клапан а закроется, прекратив питание котла. В случае неисправного действия поплавкового устройства кран л закрывают и регулируют питание вручную, действуя маховичком, насаженным на квадрат м, на зубчатую передачу н. Седло игольчатого клапана прикреплено к пустотелому шпинделю г, снабженному нарезкой и маховичком. Перемещением этого шпинделя можно в некоторых пределах менять высоту уровня воды в К. п. Остальная арматура судовых К. п. не отличается от береговой.
    []
    []
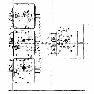
   На фиг. 104 изображено расположение арматуры и общая схема установки батареи из 4 цилиндрич. К. п.; на фигуре обозначено: а,а--главные парозапорные клапаны , б,б -- двойные пружинные предохранительные клапаны, в,в--главные питательные клапаны, г, г --вспомогательные питательные клапаны, д, д--клапаны к паровым свисткам, е,е--продувочные клапаны, ж, ж--клапаны для водомерных стекол, з,з--краны для спуска пены, и, и--пробные соляные клапаны, к, к--пробные краники, л, л--клапаны для манометров, м--парозапорный клапан для осветительной машины, п, п--паросборные трубы, о, о--питательные трубки, п, п--продувочные трубки, р, р--трубки для спуска пены, с,с--фундаментные подушки, т,т--тяги, Для удовлетворения полной потребности в паре главных механизмов современных судов требуется устанавливать на них б а т а р ею К. п., число к-рых доходит до 25. Часто устанавливают вспомогательные К. п. малого размера для питания паром вспомогательных механизмов при стоянке в порту, когда главные паровые котлы не работают. Котлы устанавливают группами (от 1 до 4) в отдельных водонепроницаемых отделениях. Каждое отделение имеет самостоятельные вспомогательные механизмы -- питательные насосы (наиболее часто систем Вира и Вортингтона), вентиляторы (чаще всего с паровыми турбинами), водонагреватели, а при нефтяном отоплении--нефтяные насосы (систем Вира и Вортингтона),нефтеподогреватели, нефтяные фильтры. Во многих случаях применяется центральное управление питанием и нефтью, для чего в машинных отделениях устанавливают главные питательные и нефтяной насосы ротативного типа; тогда в котельных отделениях ставят по одному такому запасному насосу. В последнее время делаются попытки осуществить на судах паровые установки высокого давления. К. п. системы Ярроу высокого давления работают на пароходе "King George"; К. п. снабжены угольными топками, рабочее давление пара равно 40 atm, tR пара 400R, подогрев воздуха до 260R; напряжение поверхности нагрева около 18--20 кг/м2 ч. Котел Бабкока и Вилькокса высокого давления (фиг. 105) испытывается Морским министерством США. Рабочее давление 42 atm, поверхность нагрева 472 мг, поверхность перегревателя 48 м2, вес котла 37 т. Испытания котла при полном рабочем давлении до сих пор (февраль 1930 года) не опубликованы. Как общее правило К. п. судовые устанавливаются на судах фронтами к поперечным переборкам. Фундаменты для судовых котлов изготовляются из толстой листовой стали и прикрепляются к судовому набору. Чтобы устранить развитие добавочных напряжений, продольн. крепления судна усиливают на протяжении установки котлов. Для цилиндрических котлов (фиг. 104) верхняя часть фундаментных подушек с вырезается по форме котла и для жесткости обделывается угольниками. В зависимости от веса парового котла число таких подушек колеблется от 2 до 6. С боков подушки связываются железными листами, имеющими вырезы для доступа к котлу. Высоту подушки рассчитывают так. обр., чтобы имелась возможность произвести осмотр нижней части цилиндрич. барабана К. п. Для предупреждения сдвигов К. п. при качке верхнюю часть корпуса связывают с набором судна тягами m-или же удерживают К. п. на своем месте помощью связей, к-рые соединяют нижнюю часть его непосредственно с фундаментом. Для предупреждения продольных перемещений К. п. к днищу судна приклепывают кницы, которые упираются в лобовые стенки котла.
    []
    []
   Для установки К. п. треугольного типа к водяным коллекторам последних приклепывают т.н. лапы (фиг. 106), при помощи к-рых К. п. и устанавливается на фундамент. Верхняя часть фундамента в этом случае делается строганой, и для направления лап при перемещении устанавливаются на болтах боковые направляющие наделки. Зазор между лапой и боковыми наделками дается 5--6 мм на сторону. Одна пара лап застопоривается от продольного перемещения. Для того чтобы обеспечить свободное перемещение лап, к скользящим поверхностям подводится смазка. В малых котлах вместо направляющих салазок перемещение лап обеспечивается овальными дырами для болтов, крепящих лапы к фундаменту. Для устойчивости котла при качке между паровым коллектором и переборками судна ставятся распорки, не мешающие вертикальному расширению котла при нагревании. Топливо для котлов хранится в случае угольных топок в бортовых и поперечных отсеках (в т. н. бункерах, угольных ямах), окружающих котельные отделения, а в случае нефтяного отопления--в междудонных отсеках под котельными и машинными отделениями, а также в бортовых нефтяных ямах. Угольные ямы имеют в котельных отделениях горловины (закрываемые водонепроницаемыми крышками) для подачи угля к котлам и шахты для погрузки угля с верхней палубы. При ручном обслуживании топок уголь из ям подается к котлу в кадках, при топках для сжигания пылевидного топлива или с механич. решетками-- при помощи специальных устройств. Провалившаяся в поддувало зола и шлаки при чистке топок выгребаются на площадки перед котлом, откуда они удаляются за борт при помощи мусорного эжектора или мусорной лебедки.
    []
   Мусорный эжектор (фиг. 107) состоит из чугунной воронки а, нижняя часть к-рой тройником б соединяется с трубой в, отводящей мусор за борт, и с водоотливной трубой г от трюмно-пожарного насоса, к-рая присоединяется к сопловой насадке д. В нижней части воронки устанавливают клапан е ("хлопушка") и такой же клапан устанавливают на трубе, отводящей мусор за борт. На этой же трубе между воронкой и невозвратным клапаном устанавливают задвижку ж. Для выбрасывания мусора открывают задвижку ж на мусороотводящей трубе, причем для предохранения гнезда ее от мусора в отверстие задвижки вдвигают при помощи рейки и зубчатой передачи к кусок трубы л; затем открывают клапан на водоотливной трубе (давление воды-20 кг/см2) и на решетку, установленную в верхней части воронки, набрасывают золу и шлак, крупные куски которого на этой решетке разбиваются молотком. Зола и шлак, проваливаясь через решетку, открывают хлопушку воронки и попадают в струю воды, выходящей с большой скоростью из сопловой насадки, и с этой водой уносятся за борт. Когда мусор выброшен, производится прокачка трубопровода эжектора, после чего выдвигают трубу из отверстия задвижки и закрывают ее. При неисправном действии эжектора и стоянках в гавани мусор из кочегарок поднимают электрич. или паровыми мусорными лебедкамц в кадках, через специальные шахты на верхнюю палубу и выбрасывают в баржи, стоящие у борта корабля, т. к. выбрасывание мусора за борт в гаванях и на рейдах запрещается, дабы не засорять фарватера. Результаты испытаний некоторых типов судовых К. п. приведены в табл. 6 (ст. 287--288).
    []
   Лит.: Д е р к а ч е н к о И. Судовые водотрубные котлы, 3 изд., Кронштадт, 1915; Д о л г о л е н к о В. Я., Конспект к курсу судовых паровых котлов, П., 1921; П о г о д и н А., Курс пароходной механики,ч. 1, Паровые котлы, СПБ, 1912; Б а у э р Г., Расчеты и конструкции судовых машин и котлов, пер. с нем., СПБ, 1903; С и т о н А. Е., Руководство по проектированию судовых машин и котлов, 2 изд., пер. с англ., СПБ, 1907; В я х и р е в С. В., Отчет об испытании сдвоенного водотрубного котла для миноносца "Лейтенант Ильин", "Известия по механич. части флота", П., 1918, вып. 7; В а с и л ь е в В., Испытание систем нефтяного отопления, произведенное в 1912--13 г. на испытательной станции Балтийского судостр. и механич. завода, там же, вып. 6; е г о же, Спецификапионные испытания котлов лин. кор. "Севастополь", там же; D i e c k h o f f H. u. В и с h h о 1 z H.. Berechnen и. Entwerfen d. Schiffskesse), В., 1910; S e a t o n A. E., A Manual of Marine Engineering, 20 ed., L., 1928; T r a i 1 1 T. \V\, Boilers, Marine a. Land, their Construction a. Strenght, 5 ed., L., 1920; S t r o m e y e r C.E., Marine Boilers, Management a. Construction, G ed.,L., 1924; В а и e r G-., Berechnung u. Konstruktion d. Sehiffsmaschinen u. Kessel. Berlin, 1927; D i e t r i c h M., Der moderne Dampfkessel d. Kriegs- u. Handelsschiffe, Rostoek, 1908; R o b e r t s o n L., Marine Boilers, their Construction a. Working, L., 1916; M e n t z W., Schiffskessel, Handbuch fur Konstruktion und Berechnung, B.--Mch., 1907; H а г t m a n n K., Die gesetzlichen Bestimmungen, betreffend die Genehmigung und Untersuchung der Schiffsdampfkessel, Hamburg, 1918; "Journal of the Amer. Society of Naval Engineers", Wsh.; "Shipbuilder", L.; "Marine Engineering a. Shipping Age", N. Y.; "Schiffbau", В.; "Werft--Reederei-- Hafen", В. А. Сушнлим и Г. Кернер
  

Оценка: 5.12*25  Ваша оценка:

Связаться с программистом сайта.

Новые книги авторов СИ, вышедшие из печати:
О.Болдырева "Крадуш. Чужие души" М.Николаев "Вторжение на Землю"

Как попасть в этoт список

Кожевенное мастерство | Сайт "Художники" | Доска об'явлений "Книги"