Статья из Технической энциклопедии 1927-34 г.г.
Экономайзеры водяные. Часть 1

Самиздат: [Регистрация] [Найти] [Рейтинги] [Обсуждения] [Новинки] [Обзоры] [Помощь|Техвопросы]
Ссылки:
Школа кожевенного мастерства: сумки, ремни своими руками Типография Новый формат: Издать свою книгу
 Ваша оценка:


   ЭКОНОМАЙЗЕРЫ водяные, приборы, использующие для подогрева воды тепло газов, отходящих из паровых котлов и из промышленных печей. Само наименование этих приборов обусловливается тем, что при правильно выбранной поверхности нагрева и при хорошем уходе за ними увеличивается кпд тепловой установки, в результате чего появляется экономия топлива. Материалом для изготовления водяных Э. служат чугун, железо и сталь, причем согласно 110 ст. ныне действующих в СССР правил устройства, установки, содержания и освидетельствования Э. применение чугуна допускается при изготовлении водяных Э. для паровых котлов, работающих с давлением не свыше 22 atm; для паровых же котлов, работающих свыше 22 atm, допускается в- каждом отдельном случае с разрешения органа котлонадзора СССР.
   Для изготовления деталей водяных Э. применяется чугун мелкозернистой структуры из перлита с равномерным распределением возможно малого количества графита. Для отливок деталей Э. высокого давления применяют "эконит", или специальный сорт перлитового, чугуна, с временным сопротивлением на разрыв до 38 кг/мм2. Способы отливки: горячее литье, центробежное литье, Тиссен-Эмеля, способ встряхивания; отливка производится при плавке в электрических печах и в печах Wust'a. По типу водяные Э. различают гладкотрубные и ребристые, а по расположению труб -- вертикальные и горизонтальные.
    []
    []
    []
   Основные к о н с т р у к ц и и Э.
   Ч у г у н н ы й Э., изобретенный Эдвардом Грином в 1845 г., состоит из труб а (фиг. 1), впрессованных в коробки b и с. Трубы отливаются на конус с внешним диам. 117 -- 118,5 мм вверху и 115,5--117,5 мм внизу; внутренний диам. труб в зависимости от давления 88--99 мм. При давлении до 20 atm концы труб, обточенные на конус, гидравлически или с помощью подтяжки болтов вручную впрессовывают в верхние и нижние коробки. При давлениях 20--35 atm применяют или способ соединения труб с коробками при помощи винтовых нарезов (фиг. 2) или при помощи особой кольцевой чеки--по методу з-да Dusseldorf-Heerdt (фиг. 3). Дополнительное укрепление труб в коробках производят также путём заполнения канавок, выточенных в местах конуса коробок и труб, расплавленным белым чугуном. Заполнение чугуном этих канавок, расположенных друг против друга, производится через высверленные снаружи отверстия. Эти отверстия затем заделывают при помощи пробок с нарезкою. Число труб в одной коробке (секции) 4--6--8--10--12. Каждая коробка с помощью фланцев d на болтах вверху присоединяется к коллектору е (фиг. 1), а внизу к коллектору с. В верхнем и нижнем коллекторах против каждой секции имеется по лючку g. Секций в одном элементе делают 4--8--12--16, устанавливая между нижними коллекторами лирообразные компенсаторы а (фиг. 4). Э., работающие при давлении свыше 20 atm, имеют специальные анкерные трубы, стягивающие верхние и нижние коллекторы. Трубы располагаются или рядами или в шахматном порядке, причем в Э. газы двигаются как в направлении перпендикулярном, так и в направлении, параллельном трубам. Стандарты поверхностей нагрева одной трубы для Э., изготовленных в СССР, таковы: 1,0 м2, 1,25 м2,
   1,40 м2 и 1,5 м2.
    []
    []
    []
   Движение воды в первоначальной конструкции Э. сист. Грина происходило с подводом воды в нижние коробки и с отводом ее через верхние коробки (фиг. 1 и 5,а). Впоследствии появились конструкции гладкотрубных чугунных вертикальных Э. по схемам, отмеченным на фиг. 5 буквами b, с, d, e, f Эти варианты в условиях практич. работы никаких существенных преимуществ в смысле теплопередачи не дали, в силу чего и не получили широкого распространения. Очистка труб Э. сист. Грина производится с помощью скребков (фиг. 4), приводимых в движение вверх и вниз специальным механизмом. Механизм для движения скребков требует 0,5--1,0 НP на каждые 100 труб. Для приведения в действие механич. скребков применяют паровую машину, мотор или устраивают передачу от общей трансмиссии. Наличие цепей или тросов, выходящих из обмуровки Э., увеличивает, с одной стороны, потерю тепла в окружающую среду, а, с другой стороны, избыток воздуха. Чтобы избежать всего этого, устраивают не постоянную, а периодич. обдувку труб, для чего закладывают в обмуровку трубы с насадками, приводимыми в движение вручную через соответствующую передачу.
    []
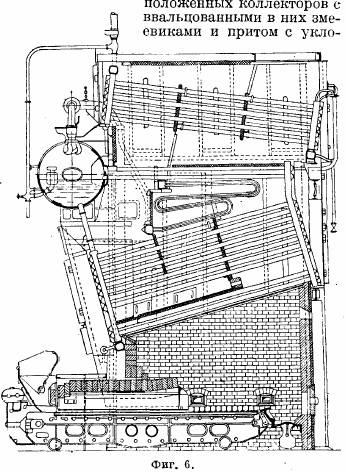
   Ж е л е з н ы й г о р и з о н т а л ь н ы й г л а д к о т р у б н ы й Э., устанавливаемый над котлами Бабкок-Вилькокс морского или полуморского типа (фиг. 6), состоит из зигзагообразных секций, в к-рые завальцованы трубы с наружным диам. 102 мм. Передние секции вверху, а задние внизу соединены с помощью завальцованных отрезков труб с прямоугольными камерами. Питание водой производится с нижней стороны задней камеры, нагретая же вода выходит с верхней стороны передней камеры. Подобные же экономайзеры строит нем. Фирма Ганомаг для давления 65 atm при трубах диам. 83/71 мм.
    []
   Ж е л е з н ы й Э. т и п а C o u n t e r f l o w а н г л и й с к о й к о н с т р у к ц и и (фиг. 7) состоит из стальных коробок, расположенных горизонтально, но так, чтобы- завальцованные в них трубы имели наклон по движению воды снизу вверх. Э. эти строятся для давления 60 atm.
   См.далее.Экономайзеры водяные. Часть 2

 Ваша оценка:

Связаться с программистом сайта.

Новые книги авторов СИ, вышедшие из печати:
О.Болдырева "Крадуш. Чужие души" М.Николаев "Вторжение на Землю"

Как попасть в этoт список

Кожевенное мастерство | Сайт "Художники" | Доска об'явлений "Книги"