Статья из Технической энциклопедии 1927-34 г.г.
Двухкамерные котлы паровые

Самиздат: [Регистрация] [Найти] [Рейтинги] [Обсуждения] [Новинки] [Обзоры] [Помощь|Техвопросы]
Ссылки:
Школа кожевенного мастерства: сумки, ремни своими руками Типография Новый формат: Издать свою книгу
 Ваша оценка:


  
   Д в у х к а м е р н ы е К. п. (фиг. 34) имеют две камеры--переднюю и заднюю, соединенные пучком кипятильных трубок. Задняя камера расположена ниже передней и служит для опускания воды из барабана; в передней камере собирается смесь пара с водой, вытекающая из кипятильных трубок и направляющаяся через патрубок (штуцер) в барабан. Вылетающая из переднего штуцера с большой скоростью струя пара отклоняется особым направляющим жолобом а параллельно оси барабана, чтобы не вызывать излишнего возмущения поверхности зеркала испарения, что привело бы к увеличению влажности пара.
    []
   Особенностью К. п., изображенного на фиг. 34, является устройство опор: передний конец барабана подвешен к поперечным балкам, опирающимся на две колонны, а задний конец котла опирается на катки посредством задней камеры. Т. о. обеспечено до известной степени свободное расширение как барабана, так и камер и пучка кипятильных трубок. Недостатком этого классического типа двухкамерных К. п. является ненадежность снабжения водой из барабана нижних рядов трубок, особенно нуждающихся в этом; объясняется это тем, что путь через верхние трубки является кратчайшим и большая часть воды протекает по ним. Для уничтожения этого недостатка питание задней камеры производится через ее нижний конец при помощи особых труб или же штуцеров, лежащих вне области нагрева; иногда этого же стремятся достигнуть путем расположения в задней камере особых перегородок или расставляя более широко нижние ряды трубок (оба последних способа однако менее надёжны). Типом котла с питанием задней камеры через ее нижнюю часть является К. п. Фицнера и Гампера, пользующийся широким распространением в СССР (фиг. 35). Обратная труба а сообщает верхний барабан с грязевиком б, к к-рому непосредственно присоединена задняя камера. В остальном котел ничем не отличается от нормального типа двухкамерных К. п. Двухкамерные К. п. широко применяются в промышленности и небольших электроцентралях, однако их недостатки, гл. обр. наличие плоских камер значительного объема, привели к тому, что в крупных установках они заменяются секциональными или вертикально-водотрубными К. п.
    []
   С е к ц и о н а л ь н ы е К. и. отличаются от двухкамерных тем, что у них камеры разбиты на ряд отдельных секций--коробок прямоугольного сечения, по б. ч. змееобразно изогнутых по длине, которые соединяются с барабаном рядом вертикальных или горизонтальных трубок. Наиболее распространенным типом этих К. п. являются котлы системы Б а б к о к а и В и л ь к о к с а .
    []
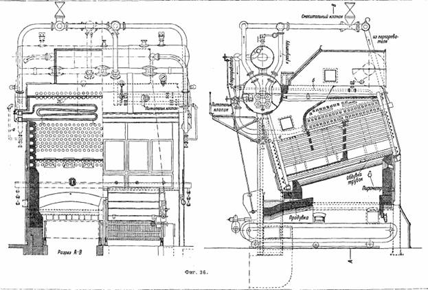
   Помимо К. п. нормального типа, применяющихся теперь лишь в установках средней величины, не требующих особенно интенсивной форсировки и высокого использования площади пола котельной, Бабкок и Вилькокс строят К. п. м о р с к о г о типа (фиг. 36), отличительными особенностями которых являются: поперечное расположение верхнего барабана, особый паровой коллектор, наклон трубок к передней части котла и соединение задних секций с барабаном горизонтальными трубками. Пароперегреватель помещается над кипятильными трубками и обогревается топочными газами, выходящими из первого дымохода. В виду того что у К. п. Бабкока и Вилькокса не имеется заслонок, регулирующих степень перегрева пара и закрывающих при растопке котла доступ топочным газам к перегревателю, в них при растопке трубки перегревателя наполняются водой из котла помощью трубопровода а; регулировка tR перегрева производится пуском в среднюю секцию перегревателя насыщенного пара по трубке б.
   Секциональные К. п. с поперечным барабаном (морского типа) применяют также часто для котельных установок большой мощности. В этом случае конструкция котла претерпевает весьма существенные изменения.
    []
  
   Установка секционального К. п. изображена на фиг. 37; основными требованиями, предъявляемыми к этим котлам, являются след.: возможность создания крупных единиц, высокая паропроизводительность, отнесенная на единицу площади пола котельной, высокий перегрев пара, значительное развитие экранной поверхности, возможность устройства топочной камеры больших размеров. Требование высокой темп-ры перегрева заставляет разделить поверхность нагрева трубчатого пучка на две части--одну меньшую а, лежащую непосредственно над топкой, и другую--большую б, лежащую за перегревателем в, расположенным между ними. Кроме поверхности нагрева трубок, входящих в состав собственно котла, парообразование совершается в трубках гг, расположенных вдоль стенок топочной камеры, и в трубках дд так называемой охладительной решетки; обе серии трубок непосредственно используют лучистую теплоту пламени и раскаленных стенок топки и участвуют весьма интенсивно в парообразовании; в трубки подается снизу вода из нижней части барабана по трубам сток:, образующийся пар поступает в верхнюю часть барабана по трубам зз. Пар собирается в коллекторе и, откуда по трубе к поступает в перегреватель. Так как эти К. п. строятся обычно для высоких давлений, то барабаны применяются почти исключительно цельнокованые.
    []
   В последнее время америк. котлостроительные заводы (Springfield Boiler Co., Heine Boiler Co.) для уменьшения числа лючков стали делать секции увеличенных размеров, причем один лючок приходится на четыре трубки (фиг. 38); кроме того, так как секции в К. п. высокой мощности для экономии места обычно ставятся не наклонно, а вертикально, то для лучшей развальцовки трубок у них устраивают особые наклонные карманы. В последнее время начали делать секции из стального литья, а при особо высоких требованиях к качеству материала--также из электростали. К. п. высокой мощности снабжают обычно топками для пылевидного топлива, особенно удобными в виду высокой tR получающегося факела, обусловливаемой легкой регулировкой избытка воздуха, а также и вследствие их экономичности, легкой управляемости и полной механизации обслуживания. Топочные газы проходят через переднюю часть котла перпендикулярно трубкам, обтекают перегреватель, затем один или два раза, меняя направление, проходят через заднюю часть трубчатой поверхности нагрева К. п., после чего для более полного использования заключающегося в них тепла проходят через экономайзер л и воздушный перегреватель ж. Нагретый воздух собирается в камере н, откуда часть его, необходимая для вдувания топлива, забирается вентилятором п, главная же масса воздуха по расположенным в стенках топочной камеры каналам р поступает в топку, охлаждая по пути стенки и нагреваясь сама. Питание производится в барабан, через верх его (с), продувка--из особых сборных коллекторов mm, соединяющих нижние концы трубок и секций. Весь котел с пучком труб подвешивается на тягах уу к стальной конструкции (каркас) .несущей на себе и все остальные части установки. Обмуровка располагается на балках, прикрепляемых к общему каркасу, причем особое внимание уделяют возможности свободного и независимого расширения ее отдельных частей; своды топочной камеры часто делают из кирпичей специальной формы, подвешиваемых к изогнутым соответственным образом стальным балкам. Золоудаление совершается исключительно из зольных воронок (через нижнюю часть их) конвейерами, отвозкой в вагонетках или гидравлически. Преимуществами секциональных К. п. помимо общих достоинств двухкамерных котлов являются: 1) эластичность соединения барабана с трубчатым пучком благодаря длинным соединительным трубам небольшого (102 мм) диаметр а; 2) легкость замены поврежденной секции по сравнению с заменой целой камеры; 3) возможность массового производства стандартизованных секций; 4) ограниченность размеров секции и возможность получения пара высоких давлений; 5) возможность (особенно в котлах морского типа) создания крупных единиц (до 2 000 м2 и выше); 6) возможность свободного расширения отдельных секций и как следствие-- меньшие темп-рные напряжения в секциях и трубках; 7) возможность уменьшения вчетверо количества лючков. Недостатки секциональных котлов г. о. следующие: 1) изготовление секций прессованием довольно затруднительно, а отливкой---требует весьма высокосортного материала, 2) точно так же затруднительно изготовление карманов для присоединения стояков к барабанам и 3) объем водяного пространства меньше, чем в двухкамерных К. п., вследствие чего секциональные котлы более чувствительны к колебаниям нагрузки. Так как, вообще говоря, достоинства секциональных К. п., с избытком уравновешивают их недостатки, котлы эти пользуются широким распространением в промышленности и на силовых станциях, начиная со средних и кончая наиболее крупными установками.
   См.далее. Батарейные горизонтально-водотрубные котлы паровые
  
  

 Ваша оценка:

Связаться с программистом сайта.

Новые книги авторов СИ, вышедшие из печати:
О.Болдырева "Крадуш. Чужие души" М.Николаев "Вторжение на Землю"

Как попасть в этoт список

Кожевенное мастерство | Сайт "Художники" | Доска об'явлений "Книги"